ZOBO卓邦专业音响logo

7.1声道豪华影厅还音系统

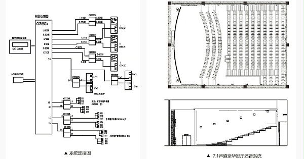
电影还音系统采用高保真音频规范,支持四路环绕音箱,两路主音箱,一路中置音箱和一路低音音箱的7.1声道音频输出,给您带来难以想像的震撼效果。一个优良的音响系统,应由优良的硬件一音响设备来支撑,下面简要介绍影院音响系统的设备选型。

7.1声道豪华影厅还音系统

设计理念

  服务于“声音艺术”的扩声系统的核心目标是:实现高质量声音重放和还原新技术的应用让系统管理和控制变得更“简单”,彰显“人性化'设计。采用“高雅艺术”表演领域中认同度高的主流产品,提高影剧院设备的认同度与利用率。

系统选型与定位

  电影还音系统采用高保真音频规范,支持四路环绕音箱,两路主音箱,一路中置音箱和一路低音音箱的7.1声道音频输出,给您带来难以想像的震撼效果。一个优良的音响系统 ,应由优良的硬件一音响设备来支撑,下面简要介绍影院音响系统的设备选型。

7.1声道豪华影厅还音系统

主扬声器系统

  三组主扬声器置于银幕后构成阵面型立体声重放系统,使观众既有明确的方向感,又能随画面影像移动而感到声像移动,克服声像空洞现象。三组扬声器的电声性能应基本一致。即:相位特性与频率特性应一致;经调整后声级相同;通道串音串减应大于30dB。

观众席环绕扬声器

  环绕声扬声器与主扬声器系统构成波阵面型平面环绕立体声系统。环绕声扬声器系统的良好设计可配合主扬声器的声像定位,增强整个电影立体声信息的空间感、分布感和方位感。环绕声扬声器系统的声场设计应要求:在观众厅内有均匀的声波覆盖,要有足够的功率余量,其位置确定,应保证主扬声器声场对环绕声声场的“优先效应”

电影还音次低频扬声器系统

  次低频扬声器担负20-200Hz频段还音,由于人耳听觉特性对低频特别不灵敏,主扬声器低频扬声器的效率又十分低,因此我们增加了专为影院系统研发的次低频扬声器。

  根据影剧院大小及对低频效果声的要求,将2或3台扬声器组合在一块,用对应功放分别驱动,利用互规效应,成倍地提高系统效率。

  扬声器置于银幕后舞台两侧,以使低频幅声能尽可能地向前辐射,减少声波的后辐射,造成不必要的声能损失。扬声器直接放在舞台地面,利用舞台地面利用地面反射声加重次低频。

数字影院处理器

  根据电影院院的要求,系统处理设备选用具有7.1声道解码数字影院处理器,具有内置3进9出的数字电子分频器,抛弃了传统的在数字音频处理器之后接分频器的方法,直接在数字影院音频处理器内部抽取数字信号,在数字域进行分频处理。避免音频信号二次数模转换,音质。内置均衡器、滤波器、延时器、压缩限幅器、分频器等处理控制器集成在一台机器内,集成度高,信噪比也很高,其控制通过USB线连接,方便调试。内置标准的以太网影院管理软件TMS接口。

目前已有876人预约解决方案

卓邦资质

卓邦营业执照 中关村高新技术企业

企业拥有国际认证资质4项,国家级认证资质3项
行业认证资质22项

项目实施能力

项目技术工程师 项目技术工程师

建设工程师 建设工程师

工程师 工程师

相关案例展示